

規格住宅なのに、
暮らしは、ちゃんと“わたしたち仕様”。
決まっているのは、暮らしやすさの土台だけ。
ひとつの間取りをベースに、
スタイル、仕様、暮らし方を自由にカスタマイズ。
家族の数だけ、ちょうどいい暮らし。
自由度の高い平屋「ROKU」

家族と過ごす時間も、仕事や趣味の時間も。
暮らし方に合わせて使える、
カスタマイズ可能なスペースが充実。
スキップフロア、ゆったりLDK、
LDKとつながるテラス…etc
暮らしに合わせて、使い方が自然に広がります。

ノルディック × ヒュッゲベースの「ROKU Slowly」
アメリカン × カジュアルベースの 「ROKU Lively」
2つのデザインスタイルをご用意。
外観は 3色のベースカラー × ウッド基本で
好みに合わせて 3パターンから選べる!
組み合わせ次第で、 同じ住まいでも表情はさまざま。
自分なりのコーディネートを楽しもう。

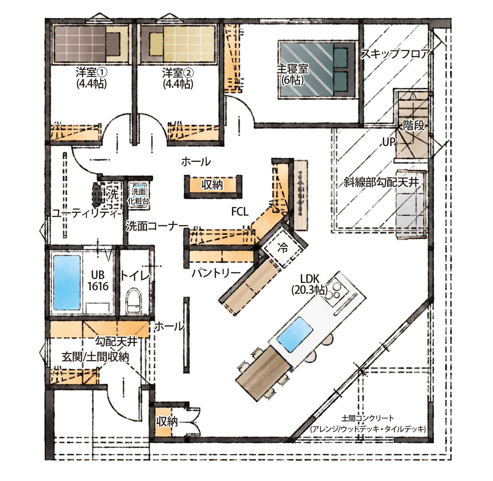
高い天井と光あふれるLDK。
スキップフロアとテラスで、暮らしに遊び心を。
LDKから程よく距離を取り取った居室や
回遊動線を取り入れた動線など
ゆっくりと寛げる空間と快適な生活動線を
両立した間取りに。
平屋の魅力を詰め込んだ、暮らしやすい間取りです。
暮らし方に合わせて
カスタマイズできる住空間

「ROKU」ではじめる暮らしを
ちょこっとだけご紹介。

LDKとつながるスキップフロアは
ワークスペースや子どもの学びの場に。
窓の外の景色に目を向け、気分転換できる場所です。

LDKとつながる、心地よいテラス。
バーベキューをしたり、夜にはお酒を愉しんだり
家族時間も一人の時間も楽しい空間です。

天井が高く、光がたっぷり入るスキップフロアは
猫ちゃんにも最適。キャットタワーやキャットウォーク、
窓辺にはお昼寝スペースをつくる事もできます。

テラスにウッドデッキをつけることも可能!
壁の間をフェンスやペットゲートで囲えば
ワンちゃんものびのび日向ぼっこができます。

大きな窓と日当たりの良いスキップフロアで
ゆっくりと自分時間を過ごす空間に。
スキップフロアの下は日焼けも防げるので
ライブラリースペースとしてもOK。

家族や仲間とBBQを楽しめるテラス。
キッチンとつながり、使い勝手も快適です。
DIYやギアのメンテナンスなど、外時間を楽しむ場所にも。
ご紹介したのは、暮らし方の一例。
スキップフロアやテラスだけじゃない
LDKやフリースペース、土間収納…
住まい全体が「自分たちらしい家」に!
楽しみ方は、無限大。
理想の暮らしをはじめてみませんか?
4人暮らし×「ROKU Slowly」
32.00坪プラン
本体価格1931万円(2124.1万円税込)~
※こちらのプラン最新情報はお問い合わせ下さい
4人暮らし×「ROKU Lively」
29.87坪プラン
本体価格1826万円(2008.6万円税込)~
※こちらのプラン最新情報はお問い合わせ下さい
4人暮らし×「ROKU Slowly」
27.12坪プラン
本体価格1712万円(1883.2万円税込)~
※こちらのプラン最新情報はお問い合わせ下さい
※本体価格は地域によって異なる場合がございます。
※本体価格の他に諸費用が必要となります。 詳しくは「家づくりの無料相談会」でお尋ねください。
※プランの最新情報は弊社までお問合せください。
とっておきの平屋「ROKU」は
ご家族の人数やライフスタイルに合わせて
お好きな平屋プランをお選びいただけます。
外観も内観もオシャレに!
各テイストに合わせた
コーディネートをご用意しています。

and more!
性能にもっとこだわりたい方、
ちょこっとだけ価格を抑えたい方、
ご希望に合わせた性能プランをご用意しています。
詳しくはお問い合わせください。

その他のプラン、性能や価格については
お問い合わせください。
で家づくりを始めよう!
受付時間 / 9:00~18:00 定休日 / 水曜日

まずはカタログ請求
してみませんか?