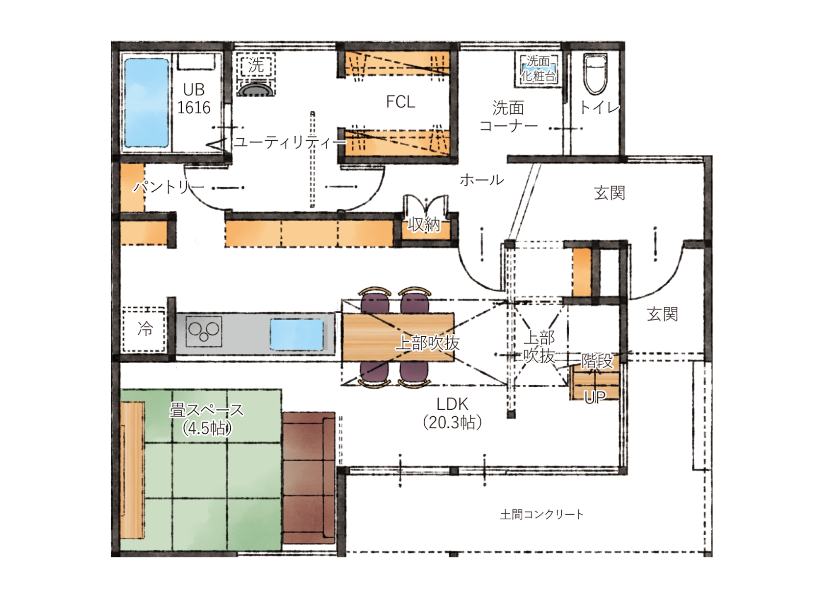
28.87坪プラン
本体価格1,799万円(1,978.9万円税込)~
-
-
PLAN / 2.Wabi平屋 3LDK

落ち着いた和の質感に
軽やかな光をまとわせ
家族の時間に穏やかなリズムと
心地よい余白を生み出す上質な住まいを
「光の調和」を楽しむジャパンディスタイル


やわらかな光と静かな影が重なり合い、
暮らしにそっと安らぎと
彩りを添えてくれます。

ヌックで過ごす自分の時間や、
家族・愛犬や愛猫とのつながりを大切にしたい方

四季の移ろいを
豊かに感じながら、心が整う暮らし。
光や風、自然の恵みをやさしく取り込み、
風景と穏やかに調和する住まい
平屋×3LDK×4人家族向け
28.87坪プラン
本体価格1,799万円(1,978.9万円税込)~
PLAN / 2.Wabi平屋 3LDK
平屋×3LDK×4人家族向け
30.87坪プラン
本体価格1,865万円(2,051.5万円税込)~
PLAN / 1.Wabi平屋 3LDK
2階建て×3LDK×4人家族向け
30.93坪プラン
本体価格1,901万円(2,091.1万円税込)~
PLAN / 4.Wabi2階建て 3LDK
※本体価格は地域によって異なる場合がございます。
※本体価格の他に諸費用が必要となります。 詳しくは「家づくりの無料相談会」でお尋ねください。
2階建てはもちろん、平屋のプランも充実。
ご家族の人数やライフスタイルに合わせてお好きなプランをお選びいただけます。
外観も内観もオシャレに!
各テイストに合わせた
コーディネートをご用意しています。

and more!
性能にもっとこだわりたい方、
ちょこっとだけ価格を抑えたい方、
ご希望に合わせた性能プランをご用意しています。
詳しくはお問い合わせください。

その他のプラン、性能や価格については
お問い合わせください。
で家づくりを始めよう!
受付時間 / 9:00~18:00 定休日 / 水曜日

まずはカタログ請求
してみませんか?